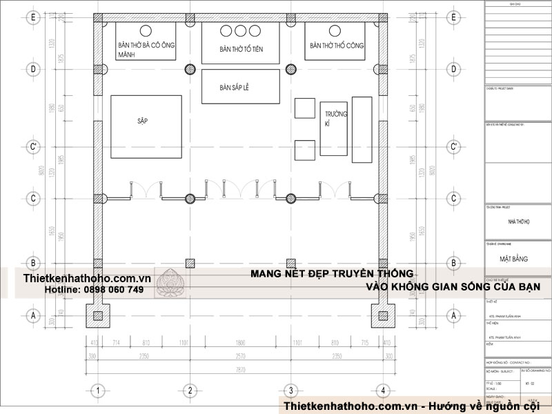
Previous Image Next Image bo-tri-noi-that-nha-tho-ho Chia sẻ:Mặt bằng bố trí nội thất nhà thờ họ 3 gian điển hình Chia sẻ: